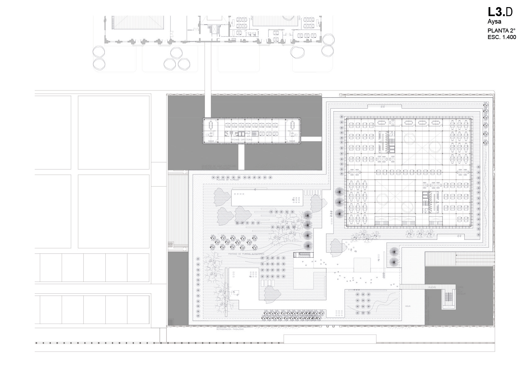
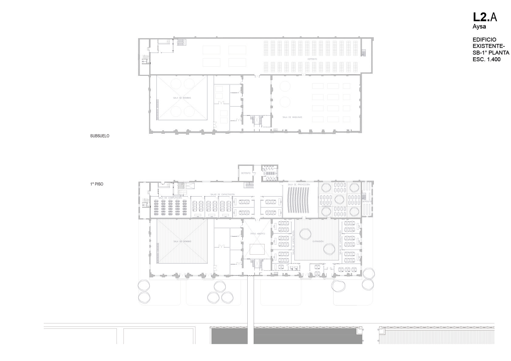
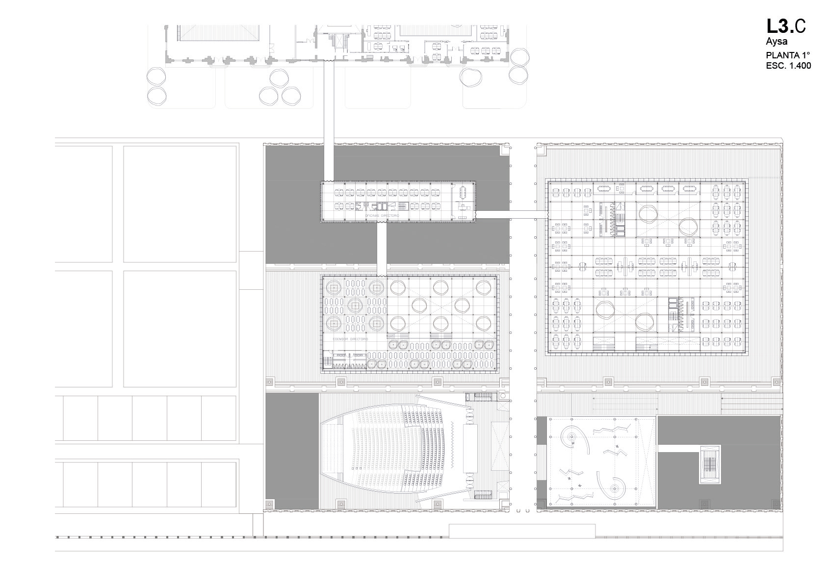
Concurso Nacional de Anteproyectos AySA
Participación en Concurso Nacional AySA. Equipo de trabajo: Pablo Engelman (EN arquitectura), Agustín Moscato (AToT), Lucia Hollman (AToT), Canela Santome Romero, Agustina Rodríguez Pascual y Leonel Sorrentino.